recherche immobilières sur mobile

Location Appartement Caen 2 pièces 45 m2 Calvados (14000) - 660 € / mois

location appartement 2 pièces 45 m² région Calvados

660 €/mois


Location Appartement 2 pièces CAEN 14000
Annonce Location 2 pièces Appartement Caen 14
Louer Appartement 45 m2 Caen

Description

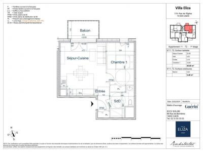
Au coeur d'un quartier dynamique de Caen, avec ses services à proximité, nous vous proposons dans la résidence neuve VILLA ELIZA, un T2 n°11 de 45m² situé au 1er étage, comprenant une entrée avec placard, un séjour de 22,60m² ouvert sur une cuisine et donnant accès à un balcon de 5,40m², une belle chambre de 12,69m² avec placard, une salle d'eau. Une place de parking extérieure n°16 complète ce bien. Chauffage individuel électrique par panneaux rayonnants. Eau chaude par ballon thermodynamique collectif (PAC). Entretien parties communes, espaces verts communs, eau, chauffage, compris dans les provisions sur charges mensuelles et donnant lieu à une régularisation annuelle. Les honoraires de location TTC (à la charge du locataire) incluent le montant de rédaction des états des lieux facturé pour 136E TTC, après réalisation lors de l'entrée dans les lieux. Pour plus de détails, vous pouvez consulter la fiche descriptive de ce bien sur notre site internet AFEDIM Les informations sur les risques auxquels ce bien est exposé sont disponibles sur le site Géorisques :
Retour
Autres photos
Plan
Favoris

Contacter l'agence

CM - CIC GESTION IMMOBILIERE
2 rond point des AntonsBP70904
44703 ORVAULT

Toutes les annonces immobilières de CM - CIC GESTION IMMOBILIERE
08.09.10.28.80


Recevoir des annonces similaires

Location à proximité de Caen