recherche immobilières sur mobile

Location Appartement Reims 2 pièces 46 m2 Marne (51100) - 585 € / mois

location appartement 2 pièces 46 m² région Marne

585 €/mois


Location Appartement 2 pièces REIMS 51100
Annonce Location 2 pièces Appartement Reims 51

Description

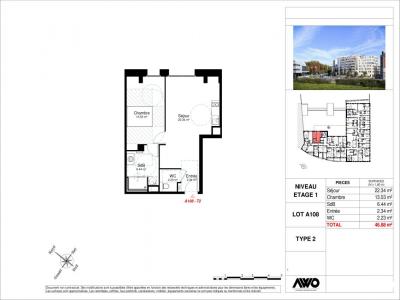
A REIMS, situé à deux pas du centre-ville et de la gare TGV, dans la résidence MIRA, nous vous proposons un T2(A108) de 46.76m² situé au 1er étage du bâtiment A, comprenant un séjour ouvert sur une cuisine aménagée et équipée (frigo, plaque et hotte) de 23.07m², une chambre de 13.28m², une salle d'eau, un WC séparé. Eau chaude et chauffage individuels électrique. Entretien parties communes, ascenseur et espaces verts communs compris dans les provisions sur charges mensuelles et donnant lieu à une régularisation annuelle. Le montant des honoraires de location est facturé directement au locataire par le partenaire pour 374 euros TTC. Quant au montant des honoraires de rédaction des états des lieux, il est facturé par AFEDIM Gestion pour 140 euros TTC, après réalisation, lors de l'entrée dans les lieux. Pour plus de détails, consultez la fiche descriptive de ce bien, sur notre site AFEDIM. Les informations sur les risques auxquels ce bien est exposé sont disponibles sur le site Géorisques :
Retour
Autres photos
Plan
Favoris

Contacter l'agence

AFEDIM Gestion
2 Rond Point des Antons CS70304
44703 ORVAULT

Toutes les annonces immobilières de AFEDIM Gestion
08.09.10.28.80 ou 08.10.00.69.36


Recevoir des annonces similaires

Location à proximité de Reims