recherche immobilières sur mobile

Location Appartement Noisy-le-grand 3 pièces 57 m2 Seine saint denis (93160) - 980 € / mois

location appartement 3 pièces 57 m² 2 chambres région Seine saint denis

980 €/mois


Location Appartement 3 pièces NOISY-LE-GRAND 93160
Annonce Location 3 pièces Appartement Noisy-le-grand 93
Louer Appartement 57 m2 Noisy-le-grand

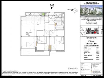
Description

NOISY LE GRAND RESIDENCE TERRASSE DU BELVEDERE Nous vous proposons un appartement T3 d'une superficie de 57.74m² situé au 1er étage avec ascenseur, comprenant : une entrée, un séjour cuisine aménagée et équipée (four-plaque-hotte) donnant sur un balcon, une 1ère chambre de , une 2nde chambre, une salle de bain et WC intégré. Au sous-sol un parking intérieur est également à votre disposition. Eau chaude et chauffage individuel au gaz. Eau froide individuel. Entretien parties communes, entretien ascenseur et espaces verts communs, compris dans les provisions sur charges mensuelles et donnant lieu à une régularisation annuelle . Les honoraires de location TTC (à la charge du locataire) incluent le montant de rédaction des états des lieux facturé pour 174.00 euros TTC, après réalisation lors de l'entrée dans les lieux. Disponible le 20/04/2026 Pour plus de détails sur ce logement, vous pouvez consulter la fiche descriptive de ce bien, sur votre site internet AFEDIM. Les informations sur les risques auxquels ce bien est exposé sont disponibles sur le site Géorisques :
Retour
Autres photos
Plan
Favoris

Contacter l'agence

AFEDIM Gestion
2 Rond Point des Antons CS70304
44703 ORVAULT

Toutes les annonces immobilières de AFEDIM Gestion
08.09.10.28.80 ou 08.10.00.69.36


Recevoir des annonces similaires

Location à proximité de Noisy-le-grand