recherche immobilières sur mobile

Location Appartement Reims 1 pièce 31 m2 Marne (51100) - 417 € / mois

location appartement 31 m² région Marne

417 €/mois


Location Appartement REIMS 51100
Annonce Location Appartement Reims 51
Louer Appartement 31 m2 Reims

Description

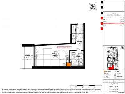
Reims, Résidence LUMINANCE. Nous vous proposons un T1 n°B301 d'une superficie de 31,07m² avec balcon de 5,87m², situé au 3ème étage avec ascenseur, comprenant : une entrée avec placard aménagé donnant sur une pièce de vie de 19,84m avec coin cuisine ainsi qu'une salle d'eau avec douche, meuble vasque et WC. Au sous-sol, un parking n°78. Eau chaude et chauffage individuel à gaz. Entretien parties communes, ascenseur et espaces verts compris dans les provisions sur charges mensuelles et donnant lieu à une régularisation annuelle. Disponible au 30/04/20026 Les honoraires de location 250E TTC (à la charge du locataire) incluent le montant de la rédaction des états des lieux facturé pour 94E TTC, après réalisation lors de l'entrée dans les lieux. Pour plus de détails sur ce logement, vous pouvez consulter la fiche descriptive de ce bien, sur notre site AFEDIM-locations. Les informations sur les risques auxquels ce bien est exposé sont disponibles sur le site Géorisques :
Retour
Autres photos
Plan
Favoris

Contacter l'agence

AFEDIM Gestion
2 Rond Point des Antons CS70304
44703 ORVAULT

Toutes les annonces immobilières de AFEDIM Gestion
08.09.10.28.80 ou 08.10.00.69.36


Recevoir des annonces similaires

Location à proximité de Reims