recherche immobilières sur mobile

Location Appartement Ronchin 2 pièces 40 m2 Nord (59790) - 597 € / mois

location appartement 2 pièces 40 m² région Nord

597 €/mois


Location Appartement 2 pièces RONCHIN 59790
Annonce Location 2 pièces Appartement Ronchin 59

Description

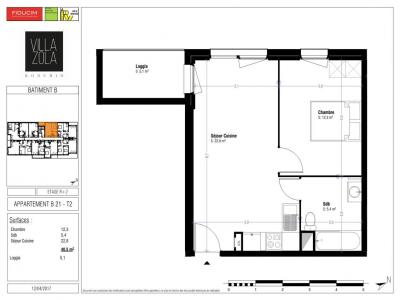
RONCHIN. Situé au coeur de la métropole Lilloise, dans un endroit stratégique au carrefour de tous les axes desservant la métropole. Dans la résidence VILLA ZOLA vous est proposé un appartement (n°B 21) de type 2 de 40.5 m² sis au deuxième étage avec ascenseur. Il comprend : une entrée, une pièce de vie de 22.8 m² avec cuisine ouverte sur séjour et donnant sur une loggia de 5.1 m², une chambre de 12.3 m², une salle de bain et baignoire et WC séparés. Au sous sol, un emplacement de stationnement. Chauffage électrique individuel. Production d'eau chaude collective par pompe à chaleur. Entretien parties communes, entretien ascenseur et espaces verts communs, compris dans les provisions sur charges mensuelles et donnant lieu à une régularisation annuelle. Les honoraires de location TTC (à la charge du locataire) incluent le montant de rédaction des états des lieux facturé pour 121 euros TTC, après réalisation lors de l'entrée dans les lieux. Disponible le 28/02/2026. Pour plus de détails sur ce logement, vous pouvez consulter la fiche descriptive de ce bien, sur votre site internet AFEDIM Les informations sur les risques auxquels ce bien est exposé sont disponibles sur le site Géorisques :
Retour
Autres photos
Plan
Favoris

Contacter l'agence

AFEDIM Gestion
2 Rond Point des Antons CS70304
44703 ORVAULT

Toutes les annonces immobilières de AFEDIM Gestion
08.09.10.28.80 ou 08.10.00.69.36


Recevoir des annonces similaires

Location à proximité de Ronchin