recherche immobilières sur mobile

Location Appartement Bonneville 2 pièces 38 m2 Haute savoie (74130) - 589 € / mois

location appartement 2 pièces 38 m² région Haute savoie

589 €/mois


Location Appartement 2 pièces BONNEVILLE 74130
Annonce Location 2 pièces Appartement Bonneville 74
Louer Appartement 38 m2 Bonneville

Description

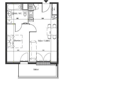
A25 BALCONS NEIGE - BEAU T2 TRÈS LUMINEUX AVEC BELLE VUE DÉGAGÉE - RÉSIDENCE AVEC VISIOPHONE. Grand séjour et cuisine US de 21 m² ouvrant sur balcon, une confortable chambre de 11.5 m² en sol parquet, une salle de bains aménagée, place de parking privative. Consommation d'énergie totale entre 610EUR -880EUR par an (prix moyens des énergies indexés sur les années 2021,2022,2023) Les informations sur les risques auxquels ce bien est exposé sont disponibles sur le site Géorisques : www. georisques. gouv. fr
Retour
Autres photos
Plan
Favoris

Contacter l'agence

CONFIANCE IMMOBILIER MONPLAISIR LOCATION
108, avenue des frères Lumière
69008 LYON

Toutes les annonces immobilières de CONFIANCE IMMOBILIER MONPLAISIR LOCATION
04.72.78.89.87


Recevoir des annonces similaires

Location à proximité de Bonneville