recherche immobilières sur mobile

Location Appartement Montoir-de-bretagne 3 pièces 65 m2 Loire atlantique (44550) - 776 € / mois

location appartement 3 pièces 65 m² 2 chambres région Loire atlantique

776 €/mois


Location Appartement 3 pièces MONTOIR-DE-BRETAGNE 44550
Annonce Location 3 pièces Appartement Montoir-de-bretagne 44

Description

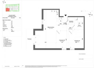
A MONTOIR DE BRETAGNE - Dans la résidence GREEN LATITUDE, nous vous proposons un appartement T3 N°2002 de 65.26m² situé au RDC. Il se compose d'une entrée avec placard, un séjour de 29.80m² avec coin cuisine donnant sur une terrasse de 6.85m² et un jardin de 133.02m², deux chambres, une salle d'eau et un WC séparé. Cet appartement dispose également d'une place de stationnement extérieur N°9053. Chauffage et eau chaude individuel au gaz. Entretien des parties communes compris dans les provisions sur charges mensuelles et donnant lieu à une régularisation annuelle. Les honoraires de location TTC (à la charge du locataire) incluent le montant de rédaction des états des lieux facturé pour 197 euros TTC, après réalisation lors de l'entrée dans les lieux. Pour plus de détails sur ce logement, vous pouvez consulter la fiche descriptive de ce bien, sur notre site internet Afedim. Les informations sur les risques auxquels ce bien est exposé sont disponibles sur le site Géorisques :
Retour
Autres photos
Plan
Favoris

Contacter l'agence

AFEDIM Gestion
2 Rond Point des Antons CS70304
44703 ORVAULT

Toutes les annonces immobilières de AFEDIM Gestion
08.09.10.28.80 ou 08.10.00.69.36


Recevoir des annonces similaires

Location à proximité de Montoir-de-bretagne