recherche immobilières sur mobile

Location Appartement Draguignan 1 pièce 25 m2 Var (83300) - 384 € / mois

location appartement 25 m² région Var

384 €/mois


Location Appartement DRAGUIGNAN 83300
Annonce Location Appartement Draguignan 83

Description

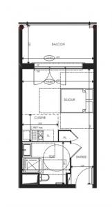
Découvrez cet appartement de Type 1 au 1er étage sans ascenseur avec un balcon, situé aux portes du Verdon à DRAGUIGNAN 83300, 498 avenue de Montferrat, à 10 min à pieds du centre-ville, et à proximité immédiate de toutes les commodités, dans une résidence neuve, un environnement verdoyant et paisible qui sera livrée au 3ème trimestre 2026. Le logement d'une surface habitable de 25.96m2 est composé d'une pièce principale, un coin cuisine équipée d'une plaque vitrocéramique, une hotte, meublée, avec plan de travail et crédence, 1 salle de bains, un balcon de 8.92m2. Le loyer mensuel est de 302E + 80E charges, 1 stationnement disponible au loyer de 40E/mois. Etude de dossier, sous conditions de ressources (plafonds LLI), pas de frais d'agence, facturation d'un mois de dépôt de garantie et du 1er loyer au prorata avant la date d'entrée dans les lieux. Chauffage électrique individuel et Eau Chaude Sanitaire distribuée par PAC Collective.
Retour
Autres photos
Plan
Favoris

Contacter l'agence

GRAND DELTA HABITAT
3, rue Martin Luther King
84000 AVIGNON

Toutes les annonces immobilières de GRAND DELTA HABITAT
04.90.27.20.09 ou 04.90.27.20.20


Recevoir des annonces similaires

Location à proximité de Draguignan