recherche immobilières sur mobile

Location Appartement Chambery 3 pièces 58 m2 Savoie (73000) - 793 € / mois

location appartement 3 pièces 58 m² région Savoie

793 €/mois


Location Appartement 3 pièces CHAMBERY 73000

Description

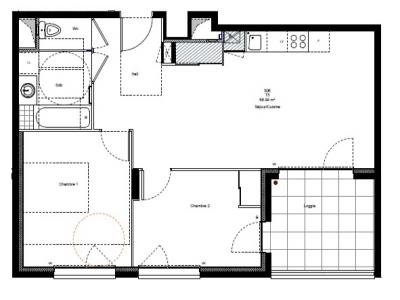
C306 LES PIERRES MARINES : T3 DANS RESIDENCE RECENTE BBC DE STANDING comprenant une belle pièce à vivre exposée sud de 25m² avec cuisine équipée et meublée (plaques vitro, four, hotte, meubles hauts et bas) donnant sur une belle terrasse de près de 8m². 2 belles chambres en sol parquet dont une avec placard mural aménagé. Salle de bain avec meuble sous-vasque et sèche-serviettes. Garage fermé en sous-sol sécurisé. CHAUFFAGE IND AU GAZ. VISIOPHONE. PROCHE DU CENTRE VILLE ET DES COMMERCES. Consommation d'énergie totale entre 343 et 465 euros par an (prix moyens des énergies indexés au 01.01.2021). Les informations sur les risques auxquels ce bien est exposé sont disponibles sur le site Géorisques : www. georisques. gouv. fr
Retour
Autres photos
Plan
Favoris

Contacter l'agence

CONFIANCE IMMOBILIER MONPLAISIR LOCATION
108, avenue des frères Lumière
69008 LYON

Toutes les annonces immobilières de CONFIANCE IMMOBILIER MONPLAISIR LOCATION
04.72.78.89.87


Recevoir des annonces similaires

Location à proximité de Chambery