recherche immobilières sur mobile

Location Appartement Dijon 1 pièce 23 m2 Cote d'or (21000) - 357 € / mois

location appartement 23 m² région Cote d'or

357 €/mois


Location Appartement DIJON 21000
Annonce Location Appartement Dijon 21

Description

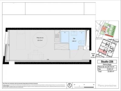
A DIJON, dans la résidence récente COURS FLEURY, nous vous proposons un studio N°226 de 23.98 m² sis au 2e étage avec ascenseur. Il se compose, une pièce de vie de 20.16 m² avec cuisine ouverte sur séjour, une salle d'eau avec meuble vasque et WC. Chauffage et eau chaude collectif gaz. Eau froide, eau chaude, chauffage, entretien des parties communes et espaces verts communs, compris dans les provisions sur charges mensuelles et donnant lieu à une régularisation annuelle. Les honoraires de location 265 E TTC (à la charge du locataire) incluent le montant de rédaction des états des lieux facturé pour 72 E TTC, après réalisation lors de l'entrée dans les lieux. Plus de détails sur notre site AFEDIM. Les informations sur les risques auxquels ce bien est exposé sont disponibles sur le site Géorisques :
Retour
Autres photos
Plan
Favoris

Contacter l'agence

AFEDIM Gestion
2 Rond Point des Antons CS70304
44703 ORVAULT

Toutes les annonces immobilières de AFEDIM Gestion
08.09.10.28.80 ou 08.10.00.69.36


Recevoir des annonces similaires

Location à proximité de Dijon