recherche immobilières sur mobile

Location Appartement Saint-mande 2 pièces 33 m2 Val de Marne (94160) - 1331 € / mois

location appartement 2 pièces 33 m² région Val de marne

1 331 €/mois


Location Appartement 2 pièces SAINT-MANDE 94160
Annonce Location 2 pièces Appartement Saint-mande 94
Louer Appartement 33 m2 Saint-mande
Louer Appartement Saint-mande Val de Marne
Louer Appartement Saint-mande 1331 euros

Description

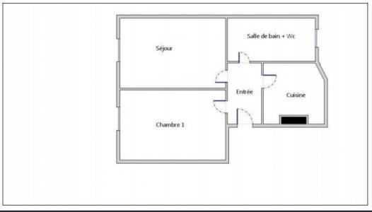
À louer - Charmant F2 meublé - Saint-Mandé Sud (Avenue Sainte-Marie) Idéalement situé dans le très recherché quartier de la Pelouse à Saint-Mandé, à deux pas du bois de Vincennes, ce bel appartement meublé de 33 m² vous séduira par son environnement paisible et verdoyant ainsi que par la qualité de sa résidence. Nichée dans une copropriété parfaitement entretenue, récemment ravalée, sécurisée par la présence d'une gardienne et de deux digicodes, cette adresse offre un cadre de vie serein et privilégié. Situé au 4ème étage avec ascenseur, l'appartement se compose d'un séjour lumineux et d'une chambre exposés plein sud, offrant une belle luminosité tout au long de la journée. La cuisine, orientée ouest, est entièrement équipée, tout comme la salle de bain, exposée au nord. L'agencement est optimisé pour un confort de vie agréable et fonctionnel. Un local à vélos est à disposition dans l'immeuble. Les charges mensuelles, d'un montant de 160 E, incluent le chauffage ainsi que la consommation d'eau chaude et d'eau froide. À proximité immédiate : commerces, écoles, équipements sportifs (centre sportif, piscine), ainsi que les transports en commun avec les stations de métro Saint-Mandé Tourelle et Porte Dorée. Un bien rare dans un secteur prisé, idéal pour une personne seule ou un couple à la recherche de calme et de qualité de vie aux portes de Paris.
Retour
Autres photos
Plan
Favoris

Contacter l'agence

BONAPART IMMOBILIER 3EME
57 rue de Turbigo
75003 PARIS

Toutes les annonces immobilières de BONAPART IMMOBILIER 3EME
01.83.62.01.14 ou 06.67.08.66.98


Recevoir des annonces similaires

Location à proximité de Saint-mande