recherche immobilières sur mobile

Location Appartement Sarrians 3 pièces 63 m2 Vaucluse (84260) - 828 € / mois

location appartement 3 pièces 63 m² 2 chambres région Vaucluse

828 €/mois


Location Appartement 3 pièces SARRIANS 84260
Annonce Location 3 pièces Appartement Sarrians 84
Louer Appartement 63 m2 Sarrians

Description

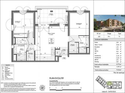
A Sarrians, proche de toutes commodité dans la résidence neuve LE VACCARESE, nous vous proposons un appartement T3 n°102 d'une superficie de 63.70m² situé au 1er étage avec ascenseur, comprenant : Une entrée, une cuisine aménagée équipée ouverte sur la pièce de vie, une terrasse orientée sud ouest d11.60m², une chambre avec un espace dressing et sa salle d'eau et son WC, une seconde chambre, une seconde sale d'eau, un WC séparé. 2 parkings extérieurs complètent ce bien n°9 et 10. Eau chaude et chauffage individuel. Entretien parties communes, entretien ascenseur et espaces verts communs, compris dans les provisions sur charges mensuelles et donnant lieu à une régularisation annuelle. Les honoraires de location TTC (à la charge du locataire) incluent le montant de rédaction des états des lieux facturé pour 193 euros TTC, après réalisation lors de l'entrée dans les lieux. Disponible le 01.06.2026.Pour plus de détails sur ce logement, vous pouvez consulter la fiche descriptive de ce bien, sur votre site internet AFEDIM. Les informations sur les risques auxquels ce bien est exposé sont disponibles sur le site Géorisques :
Retour
Autres photos
Plan
Favoris

Contacter l'agence

CM - CIC GESTION IMMOBILIERE
2 rond point des AntonsBP70904
44703 ORVAULT

Toutes les annonces immobilières de CM - CIC GESTION IMMOBILIERE
08.09.10.28.80


Recevoir des annonces similaires

Location à proximité de Sarrians