recherche immobilières sur mobile

Appartement à vendre Lyon-6eme-arrondissement 3 pièces 62 m2 Rhone (69006) - 289000 €

vente appartement 3 pièces 62 m² 2 chambres région Rhone

289 000 €


Vente Appartement 3 pièces LYON-6EME-ARRONDISSEMENT 69006
Annonce Vente 3 pièces Appartement Lyon-6eme-arrondissement 69
Acheter Appartement 62 m2 Lyon-6eme-arrondissement

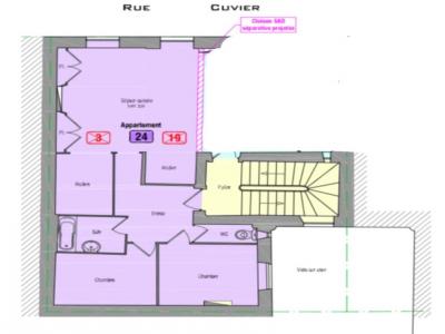
Description

Deux plateaux à vendre de 62m2 vendu à 289 000E chacun, ils sont situés au 2ème et 3ème étages sans ascenseur. Ils peuvent être transformés en T3 avec deux chambres ou T2 bis. Chaque plateau est vendu avec un compteur d'eau et d'électricité déjà installés, ainsi qu'un raccordement aux eaux usées. Ce sont des biens à rénover entièrement offrant un beau potentiel d'aménagement. Les informations sur les risques auxquels ce bien est exposé sont disponibles sur le site Géorisques :
Retour
Autres photos
Plan
Favoris

Contacter l'agence

CITI
81 Rue Tronchet
69006 LYON

Toutes les annonces immobilières de CITI
06.37.26.04.71


Recevoir des annonces similaires

Vente à proximité de Lyon-6eme-arrondissement