recherche immobilières sur mobile

Appartement à vendre Beauvais 2 pièces 42 m2 Oise (60000) - 93000 €

vente appartement 2 pièces 42 m² région Oise

93 000 €


Vente Appartement 2 pièces BEAUVAIS 60000
Annonce Vente 2 pièces Appartement Beauvais 60
Acheter Appartement 42 m2 Beauvais

Description

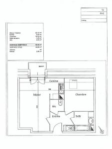
Idéal investisseur - Forom® Immobilier Forom Immobilier vous propose cet appartement T2 d'une surface d'environ 42,50 m² au 3ème étage situé dans une résidence sécurisée sur la commune de Beauvais. Le bien dispose d'un séjour, une cuisine ouverte, une chambre, une salle de bain, un WC, un balcon et une place de parking en sous-sol. o Loyer mensuel : 552,4E / mois soit 502,4E HC + 50E CL o Rentabilité : 7,12% brute o Charges : 63,25E / mois o Taxe foncière : 1 215E / an o Date de fin de bail : 06/08/2027 o DPE : C o Nombre de lots : 80 o Honoraires charge vendeur La résidence Bénéficie d'une proximité avec le centre-ville. Vous trouverez à proximité commerces, écoles et transports, offrant un cadre de vie pratique.
Retour
Autres photos
Plan
Favoris

Contacter l'agence

BONNEFOY IMMOBILIER
26 R Du Faubourg Bonnefoy
31000 TOULOUSE

Toutes les annonces immobilières de BONNEFOY IMMOBILIER
05.67.76.62.50


Recevoir des annonces similaires

Vente à proximité de Beauvais