recherche immobilières sur mobile

Terrain à vendre Clermont-l'herault Herault (34800) - 87000 €

vente terrain région Herault

87 000 €


Vente Terrain CLERMONT-L'HERAULT 34800
Annonce Vente Terrain Clermont-l'herault 34
Acheter Terrain Clermont-l'herault
Acheter Terrain Clermont-l'herault Herault
Acheter Terrain Clermont-l'herault 87000 euros

Description

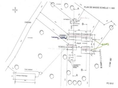
VENTE TERRAIN AGRICOLE 12476M² AVEC PERMIS DE CONSTRUIRE ACCEPTE A CLERMONT L HERAULT 34800 J'ai le plaisir de vous proposer ce terrain agricole de 12 476m² situé à Clermont l'Hérault, La Canourgue, avec un permis de construire accepté pour box et locaux canin (voir plan dans l'annonce). La SPANC a donné l'autorisation d'un assainissement non collectif, les fouilles archéologiques ont été réalisées. Enedis a donné son accord pour un raccordement à l'électricité. Les informations sur les risques auxquels ce bien est exposé sont disponibles sur le site Géorisques : Pour voir ce terrain, vous pouvez me contacter au 06 02 59 39 98. Sandrine Garcia RSAC de Montpellier 901 110 304. * Honoraires à la charge du vendeur Votre agent commercial 3G IMMO sur place EI - Sandrine GARCIA Inscrite au RSAC de MONTPELLIER 901 110 304, Tel : 06 02 59 39 98, Site 3gimmo : à la charge du vendeurVotre agent commercial 3G IMMO sur place EI - Sandrine GARCIA inscrite au RSAC de MONTPELLIER n° 901 110 304 Selon l'article L.561.5 du Code Monétaire et Financier, pour l'organisation de la visite, la présentation d'une pièce d'identité vous sera demandée.Les informations sur les risques auxquels ce bien est exposé sont disponibles sur le site Géorisques :
Retour
Autres photos
Plan
Favoris

Contacter l'agence

votre agent immobilier 3G IMMO-CONSULTANT (ANNECY 74000)
3G IMMO-CONSULTANT
4 Bis Avenue d’Aléry
74000 ANNECY

Toutes les annonces immobilières de 3G IMMO-CONSULTANT
06.02.59.39.98 ou 04.50.45.82.47


Recevoir des annonces similaires

Vente à proximité de Clermont-l'herault