recherche immobilières sur mobile

Terrain à vendre Portel-des-corbieres 150 m2 Aude (11490) - 117000 €

vente terrain 150 m² région Aude

117 000 €


Vente Terrain PORTEL-DES-CORBIERES 11490
Annonce Vente Terrain Portel-des-corbieres 11
Acheter Terrain 150 m2 Portel-des-corbieres
Acheter Terrain Portel-des-corbieres Aude
Acheter Terrain Portel-des-corbieres 117000 euros

Description

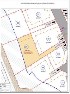
À VENDRE Terrain 677 m2 viabilisé - Lotissement "La Capelle" À Portel-des-Corbières, charmant village au c?ur des Corbières, à 15 min de Narbonne et 20 min des plages Parcelle de 677 m² Terrain viabilisé (eau, électricité, voirie) Libre choix du constructeur Proche commerces, écoles et services Accès rapide A9. Prix : 117 000 E Idéal pour primo-accédants, projet familial ou investisseurs à la recherche d'un bien à fort potentiel. Cadre de vie privilégié entre vignes et garrigue, parfait pour résidence principale ou secondaire. Pour tous renseignement n'hésitez pas à me contacter Contact : 06 50 82 62 78 Réseau EV Immobilier « Les informations sur les risques auxquels ce bien est exposé sont disponibles sur le site Géorisques ».
Retour
Autres photos
Plan
Favoris

Contacter l'agence

RESEAU EV IMMOBILIER
29 Quai Arloing
69009 LYON

Toutes les annonces immobilières de RESEAU EV IMMOBILIER
06.50.82.62.78 ou 06.86.87.52.30


Recevoir des annonces similaires

Vente à proximité de Portel-des-corbieres