recherche immobilières sur mobile

Terrain à vendre Pessac 500 m2 Gironde (33600) - 205000 €

vente terrain 500 m² région Gironde

205 000 €


Vente Terrain PESSAC 33600
Annonce Vente Terrain Pessac 33
Acheter Terrain 500 m2 Pessac

Description

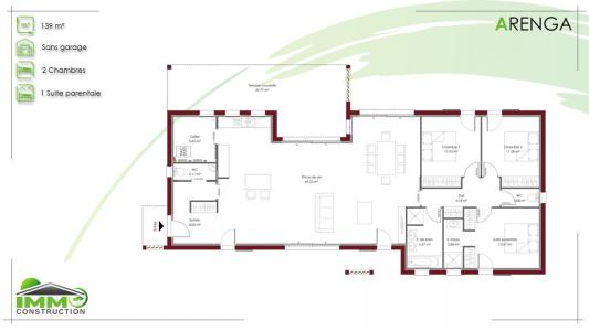
À découvrir rapidement sur PESSAC ! Terrain hors lotissement de 500 m², situé dans un secteur calme et recherché, à proximité des commerces, écoles et pistes cyclables. Caractéristiques du terrain : oSuperficie : 500 m² oEmprise au sol : 30 % oTerrain plat et bien orienté oViabilisation en bordure oEnvironnement résidentiel et paisible Idéal pour un projet de résidence principale, secondaire ou investissement locatif. Nous vous accompagnons dans la conception et la réalisation de votre projet de construction sur mesure. Prix du terrain : 205 000 E (Prix hors frais de notaire - Maison à définir selon vos envies et votre budget) Pour plus d'informations ou pour organiser une rencontre, contactez : Christopher GLORY O6 I6 69 74 95 IMMOCONSTRUCTION est un constructeur éco-responsable. Nous mettons à votre disposition une large gamme de modèles, contemporains, traditionnels, plain-pied, à étage, une gamme de maisons personnalisables qui saura répondre à vos besoins, vos attentes, qui tiendra compte des contraintes de votre terrain, de la zone constructible. Terrain sélectionné parmi nos partenaires fonciers selon disponibilités. Non soumis au DPE
Retour
Autres photos
Plan
Favoris

Contacter l'agence

IMMO CONSTRUCTION CADAUJAC
1059 avenue de Toulouse
33140 CADAUJAC

Toutes les annonces immobilières de IMMO CONSTRUCTION CADAUJAC
06.16.69.74.95 ou 05.57.59.50.77


Recevoir des annonces similaires

Vente à proximité de Pessac