recherche immobilières sur mobile

Appartement à vendre Saint-priest 3 pièces 73 m2 Rhone (69800) - 189500 €

vente appartement 3 pièces 73 m² 2 chambres région Rhone

189 500 €


Vente Appartement 3 pièces SAINT-PRIEST 69800
Annonce Vente 3 pièces Appartement Saint-priest 69
Acheter Appartement 73 m2 Saint-priest
Acheter Appartement Saint-priest Rhone

Description

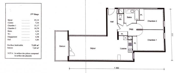
Forom Immobilier vous propose en exclusivité cet appartement T3 d'une surface de 73,09 m², situé au 2ème étage avec ascenseur dans une résidence récente avec espaces verts sur la commune de Saint Priest, à 10 minutes à pied de la gare. Résidence au calme et à proximité des commerces. Libre de toute occupation ! Le bien dispose d'un séjour, une cuisine ouverte, deux chambres avec placard, une salle de bains, un WC, un balcon et une place de parking double en sous-sol. Informations clés : - Chauffage individuel électrique - Eau froide et eau chaude comprises dans les charges (collectif) - Charges annuelles de copropriété : 2 480E. - Diagnostic de Performance Énergétique : C - Nombre de lots : 82 - Honoraires charges vendeur.
Retour
Autres photos
Plan
Favoris

Contacter l'agence

BONNEFOY IMMOBILIER
26 R Du Faubourg Bonnefoy
31000 TOULOUSE

Toutes les annonces immobilières de BONNEFOY IMMOBILIER
05.67.76.62.50


Recevoir des annonces similaires

Vente à proximité de Saint-priest