recherche immobilières sur mobile

Location Appartement Roanne 2 pièces 34 m2 Loire (42300) - 395 € / mois

location appartement 2 pièces 34 m² région Loire

395 €/mois


Location Appartement 2 pièces ROANNE 42300

Description

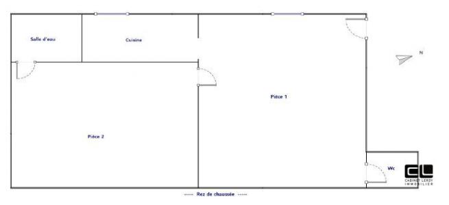
TYPE 2 - 34,6 m² - 395 E CC - ROANNE T2 situé au rez-de-chaussée de 34,6 m² comprenant un séjour (15,48 m²), une chambre de 11,08 m², une salle d'eau et WC. Chauffage et eau chaude avec chaudière gaz individuelle. Loyer 395E CC dont charges mensuelles s'élèvent à 30 E (provision, régularisation annuelle. Le dépôt de garantie est de 365 E. Honoraires état des lieux et frais de dossier = 381.64 E TTC (dont 104.84E edl) Les dépenses théoriques annuelles d'énergie sont estimées entre 830 E et 1 170 E. Pour organiser une visite , merci de déposer un dossier sur notre site CLAC suivant : Les informations sur les risques auxquels ce bien est exposé sont disponibles sur le site Géorisques :
Retour
Autres photos
Plan
Favoris

Contacter l'agence

CABINET LEROY IMMOBILIER
23 Quai Jayr
69009 LYON

Toutes les annonces immobilières de CABINET LEROY IMMOBILIER
04.72.29.11.91


Recevoir des annonces similaires

Location à proximité de Roanne