recherche immobilières sur mobile

Bureau à vendre Rennes 2170 m2 Ille et vilaine (35000) - 1100000 €

vente bureau 2170 m² région Ille et vilaine

1 100 000 €


Vente Bureau RENNES 35000
Annonce Vente Bureau Rennes 35
Acheter Bureau 2170 m2 Rennes
Acheter Bureau Rennes Ille et vilaine
Acheter Bureau Rennes 1100000 euros

Description

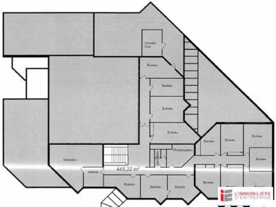
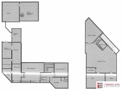
L'immobilière d'entreprise vous propose à la vente ce bien situé à Cesson-Sévigné, d'une surface de 2 170 m². Implanté en coeur de la Z.I Sud-Est, cet ensemble immobilier bénéficie d'un environnement tertiaire et d'activités particulièrement dynamique, au sein d'un secteur reconnu de la métropole rennaise. Édifié sur une parcelle foncière de 4 125 m², le bâtiment développe : - 577 m² de surface de plancher en sous-sol, - 1 148 m² en rez-de-chaussée (surfaces utiles brutes : 930 m²) - 445 m² au R+1 (surfaces utiles brutes : 395 m²)l'immeuble est en très bon état, offre des espaces fonctionnels et bien répartis; et propose des bureaux cloisonnés et lumineux ainsi que des espaces de circulation confortables, adaptés à une activité tertiaire, un centre de formation, un siège d'entreprise ou toute structure nécessitant des capacités de stockage complémentaires en sous-sol.Le site dispose de 37 places de stationnement, et un accès direct à un arrêt de bus au niveau de l'entrée du site, facilitant l'accès des collaborateurs et visiteurs. - Localisation : Z.I Sud-Est, CESSON-SÉVIGNÉ - Surface : 2 170 m² - Disponibilité : Immédiate DPE En cours
Retour
Autres photos
Plan
Favoris

Contacter l'agence

IMMOBILIERE D'ENTREPRISE RENNES
14 BD SEBASTOPOL
35000 RENNES

Toutes les annonces immobilières de IMMOBILIERE D'ENTREPRISE RENNES
02.99.83.34.42


Recevoir des annonces similaires

Vente à proximité de Rennes