Maison à vendre Bourg-achard 5 pièces Eure (27310) - 168000 €
vente maison 5 pièces 3 chambres région Eure
168 000 €
Description
?? Pavillon neuf, Maison en contrat CCMI sécurisé ??
Vous rêvez de faire construire votre maison sur un terrain sélectionné avec soin ?
Découvrez ce projet de construction neuve en contrat de construction de maison individuelle (CCMI), qui vous garantit un prix ferme et définitif, des délais encadrés, et toutes les assurances obligatoires (garantie décennale, dommage-ouvrage, parfait achèvement...).
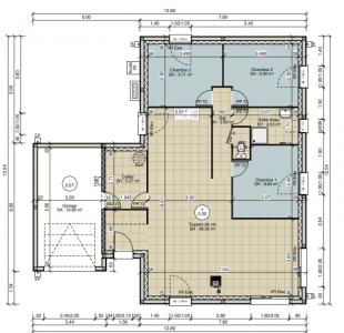
?? Description du modèle proposé :
Maison au design contemporain, composée d'une belle pièce de vie traversante avec cuisine ouverte, chambres, salle de bains équipée, WC suspendus séparés, cellier/buanderie, et garage ou carport selon la configuration.
Architecture soignée, lignes épurées, nombreuses possibilités de personnalisation (revêtements, agencements intérieurs, domotique, chauffage au choix...).
?? Prestations techniques incluses :
oConstruction conforme à la norme RE2020 (réglementation environnementale)
ovide sanitaire
oMurs en parpaings, enduit gratté
oToiture en ardoise
oMenuiseries PVC double vitrage isolant
oChauffage performant
oIsolation thermique renforcée : combles soufflés, doublage des murs avec laine minérale
oConforme aux dernières normes d'accessibilité et d'économie d'énergie
?? Le tout sur un terrain situé dans un cadre agréable.
Accès rapide aux commodités, écoles, commerces et transports.
?? Une étude gratuite et personnalisée est possible pour adapter ce projet à vos besoins, vos goûts et votre budget.
?? Contactez-moi dès maintenant pour plus d'infos, une visite terrain et la conception de votre plan sur mesure !
Garanties et assurances obligatoires incluses (voir détails en agence). Hors raccordements, hors branchements. Hors frais de notaire. Terrain sélectionné et vu pour vous sous réserve de disponibilité et au prix indiqué par notre partenaire foncier.
Annonce Pro
Pièces5
Chambres3
SDB1
Terrain900 m2
DPEA
Référence19027096 - GJ-00034
Publiée le24/03/2026
Retour
Autres photos
Plan
Favoris
Contacter l'agence
DEMEURANCE VAL DE SEINE - ROUEN 67 Quai Cavelier de la Salle 76100 ROUEN
X FermerUtilisation des cookies En poursuivant votre navigation vous acceptez l'utilisation des cookies ou technologies similaires pour disposer de services et d'offres adaptés à vos centres d'intérêts Pour plus d'informations, gérer ou modifier les paramètres, cliquez ici