recherche immobilières sur mobile

Appartement à vendre Cergy 3 pièces 63 m2 Val d'Oise (95000) - 303000 €

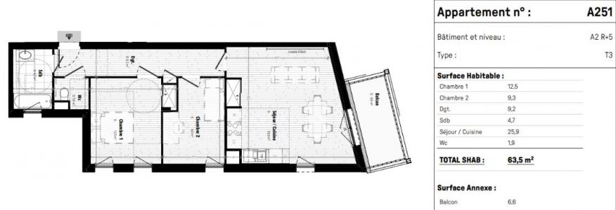
vente appartement 3 pièces 63 m² 2 chambres région Val d'oise

303 000 €


Vente Appartement 3 pièces CERGY 95000
Annonce Vente 3 pièces Appartement Cergy 95
Acheter Appartement 63 m2 Cergy

Description

Imax, vous propose dans une résidence qui s'articule autour d'un magnifique jardin paysager central, véritable poumon vert pour les résidents, un grand 3 pièces. Au 5ème étage avec ascenseur, découvrez ce bel appartement d'une surface de 63.50m² offrant une organisation idéale entre espace de vie et coin nuit. Le séjour avec cuisine ouverte, baigné de lumière, propose un cadre convivial pour recevoir ou simplement profiter de moments de détente. Son ouverture sur un balcon prolonge naturellement l'espace vers l'extérieur, parfait pour vos pauses en plein air. Côté nuit, deux chambres confortables permettent d'accueillir famille, enfants ou même un espace bureau selon vos besoins. Le dégagement central structure intelligemment l'appartement et apporte une vraie sensation d'espace. La salle de bain et les WC séparés ajoutent un vrai plus en termes de confort au quotidien. Fonctionnel, lumineux et facile à aménager, cet appartement s'adapte aussi bien à une vie de famille qu'à un projet d'investissement. Une opportunité à ne pas laisser passer !
Retour
Autres photos
Plan
Favoris

Contacter l'agence

votre agent immobilier IMAX IMMO NEUF (Courbevoie 92400)
IMAX IMMO NEUF
2 avenue Gallieni
92400 Courbevoie

Toutes les annonces immobilières de IMAX IMMO NEUF
01.46.91.00.00 ou 06.27.56.39.07


Recevoir des annonces similaires

Vente à proximité de Cergy