recherche immobilières sur mobile

Terrain à vendre Carvin 500 m2 Pas de calais (62220) - 79000 €

vente terrain 500 m² région Pas de calais

79 000 €


Vente Terrain CARVIN 62220

Description

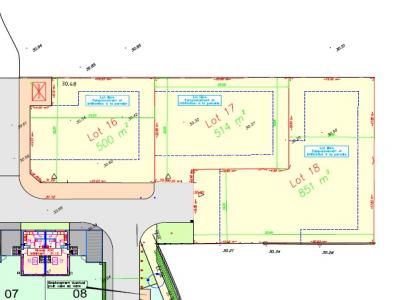
Sur la Commune de Carvin - Route de Carnin Au coeur d'un lotissement de 16 parcelles, 3 lots disponibles Bornés et viabilisés Lot 16 : 500m², 23.14m de façade, exposé NE, 79 000E Lot 17 : 514m², 25m de façade, exposé NE, 82 000E Lot 18 : 851m², 16m de façade, exposé NE, 121 000E Disponibles immédiatement
Retour
Autres photos
Plan
Favoris

Contacter l'agence

SIA HABITAT
67, avenue des Potiers
59500 DOUAI

Toutes les annonces immobilières de SIA HABITAT
06.78.54.83.65 ou 03.20.22.10.33


Recevoir des annonces similaires

Vente à proximité de Carvin