recherche immobilières sur mobile

Appartement à vendre Caluire-et-cuire 5 pièces 98 m2 Rhone (69300) - 321000 €

vente appartement 5 pièces 98 m² 3 chambres région Rhone

321 000 €


Vente Appartement 5 pièces CALUIRE-ET-CUIRE 69300
Annonce Vente 5 pièces Appartement Caluire-et-cuire 69
Acheter Appartement 98 m2 Caluire-et-cuire

Description

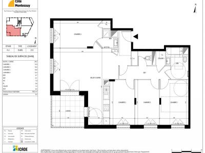
Rare à Caluire-et-Cuire : grand T5 disponible en Bail Réel Solidaire ! Devenez propriétaire jusqu'à 50 % moins cher que le prix du marché, dans un cadre verdoyant à deux pas du Fort de Montessuy. La résidence « Côté Montessuy » allie élégance architecturale et confort moderne, à proximité des commerces et des transports, dans un environnement paisible. Ce T5 de 98,8 m² (lot 213) offre une entrée avec placard, des WC séparés, un cellier, une salle de bains avec baignoire trois chambres spacieuses de 10,2 m² à 12 m² et une suite parentale de 12,4 m² avec salle d'eau.  Le séjour-cuisine lumineux de 36,2 m² s'ouvre sur une loggia de 9,4 m². Résidence certifiée NF Habitat, Label biosourcé et conforme à la RE 2020. Prix de vente : 321 000 E. Net vendeur. Sans frais d'agence. Frais de notaire à la charge de l'acquéreur.  Redevance : 230,53 E / mois Charges estimées : 158,08 E / mois Livraison prévisionnelle : 4e trimestre 2028
Retour
Autres photos
Plan
Favoris

Contacter l'agence

LMH LYON METROPOLE HABITAT
194 rue Duguesclin
69003 LYON

Toutes les annonces immobilières de LMH LYON METROPOLE HABITAT
04.72.69.01.69


Recevoir des annonces similaires

Vente à proximité de Caluire-et-cuire