recherche immobilières sur mobile

Appartement à vendre Caluire-et-cuire 3 pièces 76 m2 Rhone (69300) - 240825 €

vente appartement 3 pièces 76 m² 2 chambres région Rhone

240 825 €


Vente Appartement 3 pièces CALUIRE-ET-CUIRE 69300
Annonce Vente 3 pièces Appartement Caluire-et-cuire 69
Acheter Appartement 76 m2 Caluire-et-cuire

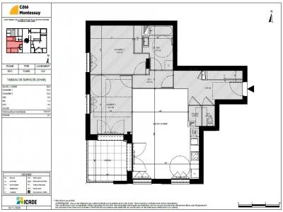
Description

Rare à Caluire-et-Cuire : T3 disponible en Bail Réel Solidaire ! Devenez propriétaire jusqu'à 50 % moins cher que le prix du marché, dans un cadre verdoyant à deux pas du Fort de Montessuy. La résidence « Côté Montessuy » allie élégance architecturale et confort moderne, à proximité des commerces et des transports, dans un environnement paisible. Ce T3 de 76 m² (lot 102) offre une entrée avec placard, des WC séparés, un cellier, une salle de bains avec baignoire et deux chambres spacieuses de 12,5 m² et 13,5 m². Le séjour-cuisine lumineux de 38,4 m² s'ouvre sur une loggia de 8,1 m². Résidence certifiée NF Habitat, Label biosourcé et conforme à la RE 2020. À partir de 240 825 E Redevance : 121,60 E / mois Charges estimées : 177,80 E / mois
Retour
Autres photos
Plan
Favoris

Contacter l'agence

LMH LYON METROPOLE HABITAT
194 rue Duguesclin
69003 LYON

Toutes les annonces immobilières de LMH LYON METROPOLE HABITAT
04.72.69.01.69


Recevoir des annonces similaires

Vente à proximité de Caluire-et-cuire