Plumergat - Les Coteaux des Hermines T2 - 4 Terrains
Les lots disponibles à la vente :
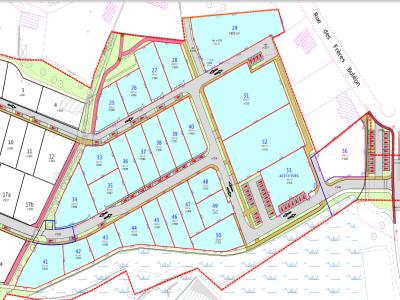
- Lot 27 - 494 m² au prix de 79 500E
- Lot 28 - 448m² au prix de 75 500E
- Lot 36 - 431 m² au prix de 68 500E
- Lot 41 - 611 m² au prix de 90 000E
(+ frais de Notaire d'environ 8 %)
Pour toutes questions n'hésitez pas à contacter : Morbihan Habitat au 02 97 40 22 99 ou par mail :
Annonce Pro
Surface431 m2
Référence19080122 - VTE_PLUMERGAT_SGO_
Publiée le20/04/2026
BarèmeVoir le barème des honoraires
Retour
Autres photos
Plan
Favoris
Contacter l'agence
BRETAGNE SUD HABITAT 6 avenue Edgar Degas 56008 VANNES
X FermerUtilisation des cookies En poursuivant votre navigation vous acceptez l'utilisation des cookies ou technologies similaires pour disposer de services et d'offres adaptés à vos centres d'intérêts Pour plus d'informations, gérer ou modifier les paramètres, cliquez ici