recherche immobilières sur mobile

Terrain à vendre Plumergat 431 m2 Morbihan (56400) - 68500 €

vente terrain 431 m² région Morbihan

68 500 €


Vente Terrain PLUMERGAT 56400
Annonce Vente Terrain Plumergat 56

Description

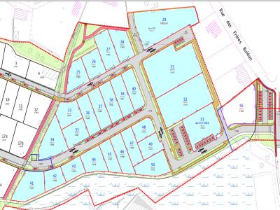
Plumergat - Les Coteaux des Hermines T2 - 4 Terrains Les lots disponibles à la vente : - Lot 27 - 494 m² au prix de 79 500E - Lot 28 - 448m² au prix de 75 500E - Lot 36 - 431 m² au prix de 68 500E - Lot 41 - 611 m² au prix de 90 000E (+ frais de Notaire d'environ 8 %) Pour toutes questions n'hésitez pas à contacter : Morbihan Habitat au 02 97 40 22 99 ou par mail :
Retour
Autres photos
Plan
Favoris

Contacter l'agence

BRETAGNE SUD HABITAT
6 avenue Edgar Degas
56008 VANNES

Toutes les annonces immobilières de BRETAGNE SUD HABITAT
02.97.40.22.99 ou 02.97.43.82.00


Recevoir des annonces similaires

Vente à proximité de Plumergat