recherche immobilières sur mobile

Maison à vendre Merignac 6 pièces 150 m2 Gironde (33700) - 598000 €

vente maison 6 pièces 150 m² 4 chambres région Gironde

598 000 €


Vente Maison 6 pièces MERIGNAC 33700
Annonce Vente 6 pièces Maison Merignac 33
Acheter Maison 150 m2 Merignac
Acheter Maison Merignac Gironde
Acheter Maison Merignac 598000 euros

Description

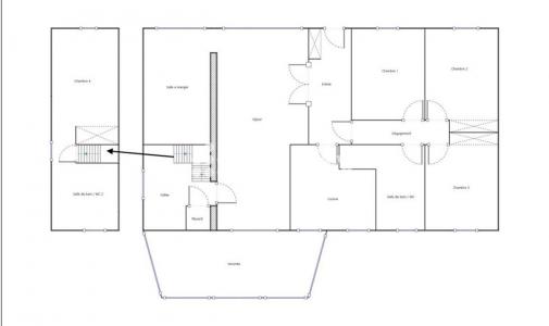
À VENDRE MAGNIFIQUE MAISON FAMILIALE - 150m² - 4 CHAMBRES - PISCINE - JARDIN - 33700 MERIGNAC Efficity vous propose cette maison familiale en excellent état, à la décoration soignée et matériaux de qualité. Elle vous offrira un cadre de vie confortable et convivial. Dès l'entrée, vous découvrirez un bel espace de vie composé d'un salon et d'une salle à manger chaleureux, une cuisine indépendante aménagée et équipée ouvrant sur une agréable véranda. Le rez-de-chaussée accueille également trois chambres confortables, une salle d'eau avec wc, ainsi qu'une buanderie fonctionnelle. A l'étage, se niche une spacieuse suite parentale avec salle de bains et wc, un véritable cocon d'intimité. A l'extérieur, vous profiterez d'un jardin paysager avec une très belle piscine, d'une dépendance et d'un espace terrasse indépendante avec barbecue, parfait pour vos repas d'été et moments entre amis. Une maison clés en main, lumineuse et parfaitement entretenue dans un quartier familial calme et verdoyant. Contactez-nous pour organiser une visite ou pour plus de renseignements. Les informations sur les risques auxquels ce bien est exposé sont disponibles sur le site Georisque : georisques. gouv. fr Patricia Villacampa - EI - est Agent Commercial mandataire en immobilier, immatriculé au Registre Spécial des Agents Commerciaux du Tribunal de Commerce de Bordeaux sous le n°884155300. Siège social du mandant : effiCity, 48 avenue de Villiers - 75017 PARIS - Société par Actions Simplifiée, société au capital de 132 373,05 euros, immatriculée au RCS Paris 497 617 746 et titulaire de la Carte professionnelle CPI 7501 2015 000 002 025 - CCI Paris IDF - Caisse de Garantie : GALIAN Assurances 89 rue de la Boétie 75008 Paris

Équipements

Retour
Autres photos
Plan
Favoris

Contacter l'agence

votre agent immobilier RESEAU EFFICITY (Paris 75009)
RESEAU EFFICITY
9 rue du Faubourg Poissonière
75009 Paris

Toutes les annonces immobilières de RESEAU EFFICITY
06.17.15.35.27


Recevoir des annonces similaires

Vente à proximité de Merignac